
● 原有客厅开间不足,空间不够大气。
● 厨房面积太小,日常生活使用不够便利;没有餐厅的位置。
● 隔间多,空间会显得有些零碎。
● 顶楼露台面积大,空间浪费多。
◼Floor Plan Design/户型改造思路
✔客厅:横厅的结构优势本身空间就大,将阳台纳入客厅,空间更显大,看起来更气派。
✔餐厨:去掉原来书房的空间,打通成一个完整的餐厅厨房,实现餐厨一体的结合,让空间看起来更宽敞开阔,居住使用起来更便利。
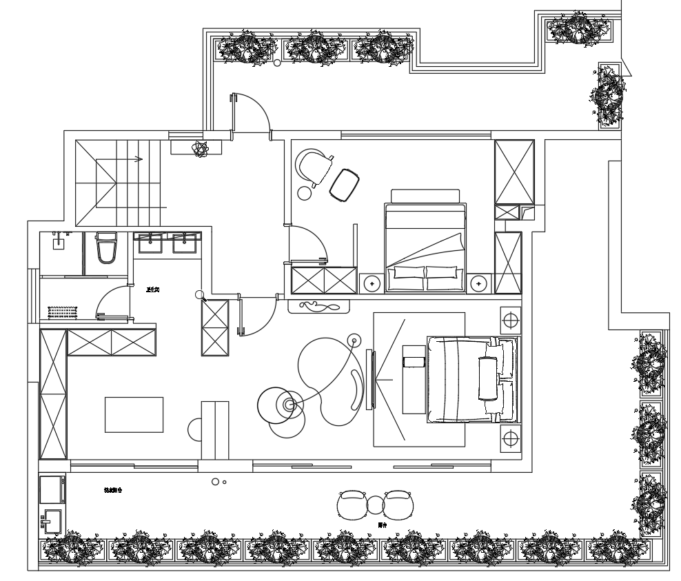
✔顶层搭建:实际根据房间数量要求,可以搭建成一个独立的卧室,也可以是书房、瑜伽室、健身房等。再搭配一个完整的主卧套房,露台花园,实际得房率可达240平。
◼Floor Plan Design/户型改造方案


户型|Floor:4室2厅
◼Floor Plan Design/效果图展示
这套案例设计成当下最流行的意式简约风格,简约、干练、高级。意式风格标配的黑、白、咖三色互相融合,共同成就这套经典舒适耐看的风格效果。


客厅是一家人活动的中心,设计师在设计过程中更注重家人间的互动和交流。双面组合式沙发将客厅划分成两个空间,既可观影、休闲娱乐,也可阅读、亲子互动,给家创造更多的生活可能性。


“轻硬装重软装”是现在装修趋势,本案硬装以简为主,简约电视背景墙搭配无主灯设计;软装的选择搭配以时尚经典耐看为主,共同营造一个温馨舒适的生活空间!

客餐一体是这套案例改造的重点,去掉一个书房空间扩大厨房面积做成开放式厨房,U型厨房结构,一面烹饪一面收纳,餐桌放置其中,使用更便利。
从空间布局角度而言,显得空间更宽敞开阔,与横厅结构融合,让家更显大!

顶楼的主卧套房尊享主人的优配,兼顾睡眠、休息、收纳、独处的专属享受,因为空间足够宽敞,中间用一组半墙隔开睡眠区和休闲区,更注重舒适性和隐私性。